FRESNO | New Homes for Sale in Cypress, TX

Single Family Home

Est. Loading... /mo

$329,990

  • Square Footage

    1,521 sq ft

  • Bedrooms

    4 beds

  • Bathrooms

    2 baths

  • Number of Floors

    1 floor

  • Parking Bays

    2 bays

Creekland Village at Bridgeland
21015 Medina River,
Cypress, TX 77433

phone icon 281-698-6304
watch icon Sales Office Hours

Sales Office Hours

Sunday 12:00 PM - 06:00 PM

Monday 12:00 PM - 06:00 PM

Tuesday 10:00 AM - 06:00 PM

Wednesday 10:00 AM - 06:00 PM

Thursday 10:00 AM - 06:00 PM

Friday 10:00 AM - 06:00 PM

Saturday 10:00 AM - 06:00 PM

Overview

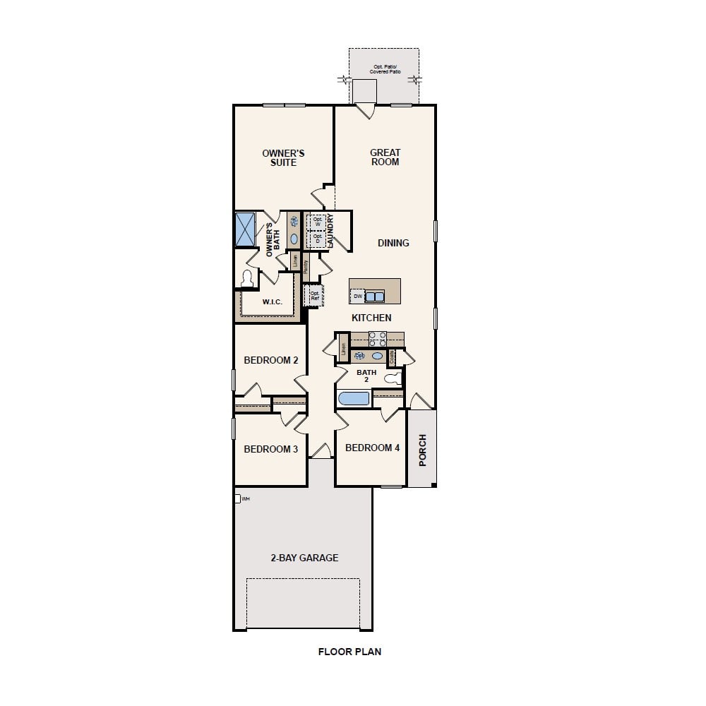
The charming Fresno plan boasts a smartly designed layout with plenty of entertaining and private living space. At the heart of the home, an open-concept layout includes a great room. A casual dining area and a spacious kitchen boasting a center island and pantry. Off the kitchen, you’ll enjoy access to three inviting secondary bedrooms, a full hall bath and a two-bay garage. Toward the back of the home, a secluded primary suite comes with a roomy walk-in closet and private bath.

Floor Plan

Available Homes

Buy online today!

Lock in your dream home through our convenient and completely online Buy Now process.

  • No Back Neighbors

    12606 Nueces River Drive | Lot 100214

    Est. Completion:
    Sep. Move In.
    FRESNO

    Single Family Home

    Est. Loading... /mo
    $348,900
    • Square Footage 1,521 sq-ft
    • Bedrooms 4 br
    • Bathrooms 2 ba
    • Parking Bays 2 bays
  • gourmet kitchen
    spacious primary suite

    21231 Gulf Menhaden Lane | Lot 100217

    Est. Completion:
    Jun. Move In.
    FRESNO

    Single Family Home

    Est. Loading... /mo
    $354,900
    • Square Footage 1,521 sq-ft
    • Bedrooms 4 br
    • Bathrooms 2 ba
    • Parking Bays 2 bays

Explore homesites at this community!

Get a feel for the neighborhood and find the right homesite for you.

Community Information

Creekland Village at Bridgeland

Welcome to Creekland Village, the final village of the beautiful Bridgeland community—featuring inspired new homes for sale in Cypress, TX. Nestled in one of the Houston area’s fastest-growing corridors—near U.S. 290—Creekland Village at Bridgeland offers an easy commute to regional employment and entertainment hotspots. Cypress is also home to the sought-after Waller Independent School District. You’ll love the community's 11,500 acres of luxury living—featuring great resort-style amenities. Creekland Village at Bridgeland is proud to follow sustainability practices like utilizing a water reuse system. Explore our exceptional Bridgeland homes for sale—showcasing versatile single- and two-story plans with desirable included finishes—and start your dream home journey today!

 

 

Community Amenities

  • Pools
  • Playgrounds
  • Hiking/biking trails
  • Lakes
  • Open space
  • Activity center

Schools

  • Waller ISD
  • Roberts Road Elementary
  • Waller Junior High
  • Waller High

Shopping and Dining

  • HEB
    Cypress, TX 77433
  • Costco
    Cypress, TX 77433
  • Kroger
    Cypress, TX 77433
  • Lowe's Home Improvement
    Cypress, TX 77429
  • Walmart
    Cypress, TX 77429
  • Houston Premium Outlets
    Cypress, TX 77433
  • Longhorn Steakhouse
    Cypress , TX 77433
  • Olive Garden
    Cypress, TX 77433
  • Lupe Tortilla
    Cypress, TX 77433
  • Toasted Yolk
    Cypress, TX 77433

Homeowner reviews

See for yourself what our Century Communities homeowners are saying about their dream homes!

Request Information

Do You Currently Rent or Own
I'm a realtor required
Schedule a Tour

Century Communities' privacy policy can be found at www.centurycommunities.com/privacy-policy.

 

SMS Consent: By consenting to recieve SMS messages, your agree that we can contact you via text using the phone number provided.  Text messaging will be used to send information specific to your inquiry or offers related to your inquiry.  Message frequency will vary - with a maximum of 10 text messages sent in a 30 day window. 

 

Standard text message rates apply. Users can opt out of text messages at any time by texting STOP.

 

©2025 Century Communities, Inc.

 

This site is protected by reCAPTCHA.